Kuća, Gornji grad (prodaja)

335.000,00 €
  • Post Updated: 2026-02-25 18:48:40
  • Date added: 25.02.26
  • Bedrooms: 5
  • Bathrooms: 3
  • Type:
  • Area: 119 m²
  • Lot size: 64 m²

Share this:

Description

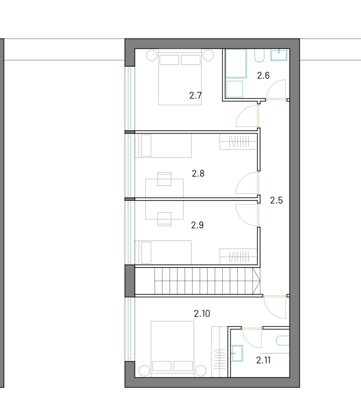
Prodaje se luksuzna kuća u Gornjem gradu. Kuća se sastoji od prizemlja i kata. U prizemlju se nalazi hodnik (4,03m2), dnevni boravak sa blagovaonicom i kuhinjom (44,52m2), ostava (1,46m2) i WC (1,75m2). Ukupne površine prizemlje 51,76m2. Kat se sastoji od hodnika i stubišta (12,58m2), kupaonice (4,46m2), sobe 1 (11,40m2), sobe 2 (10,94m2), sobe 3 (10,94m2), sobe 4 (12,91m2) i kupaonice (3,96m2). Ukupne površine kat 67,19m2. Sveukupne površine 118,95m2. Uz kuću je pripadajuće dvorište površine 64,00m2, spremište površine cca 8m2 i garaža površine 18,69m2. Orijentacije: sjever /jug. Kuća je opremljena PVC stolarijom, el. rolete, podovi – keramika/ parket po izboru kupca, klizne stijene, protuprovalna vrata, klima…Grijanje: podno, centralno-plinsko..
Useljivo: druga polovica 2027. god.
Kuća se nalazi na odličnoj lokaciji, u blizini stana nalaze se škole, vrtić, trgovine, ljekarna, javni prijevoz …

This style property is located in is currently and has been listed on Nekretnine Rupčić. This property is listed at 335.000,00 €. It has 5 beds bedrooms, 3 baths bathrooms, and is 119 m². The property was built in year.