Urbana vila / Novi grad – novogradnja

  • Post Updated: 2026-05-13 08:50:22
  • Date added: 11.12.25
  • Type:
  • Status:

Share this:

Description

Prodaju se  stanovi u urbanoj vili u Novom gradu.

Vila se sastoji od prizemlja, 1. kata i 2. kata.

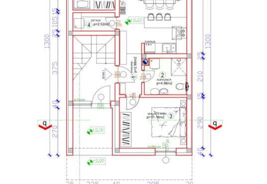
Prizemlje: trosoban stan, koji se sastoji od predsoblja (2,98m2), kuhinje, blagovaonice i dnevnog boravka (26,10m2), ostave (2,52m2), kupaonice (4,98m2), spavaće sobe (11,16m2) i sobe (10,38m2).
Ukupne površine 58,12m2. Uz stan je pripadajuće dvorište površine 69,00m2 i parkirno mjesto.

Cijena:205.000,00eur

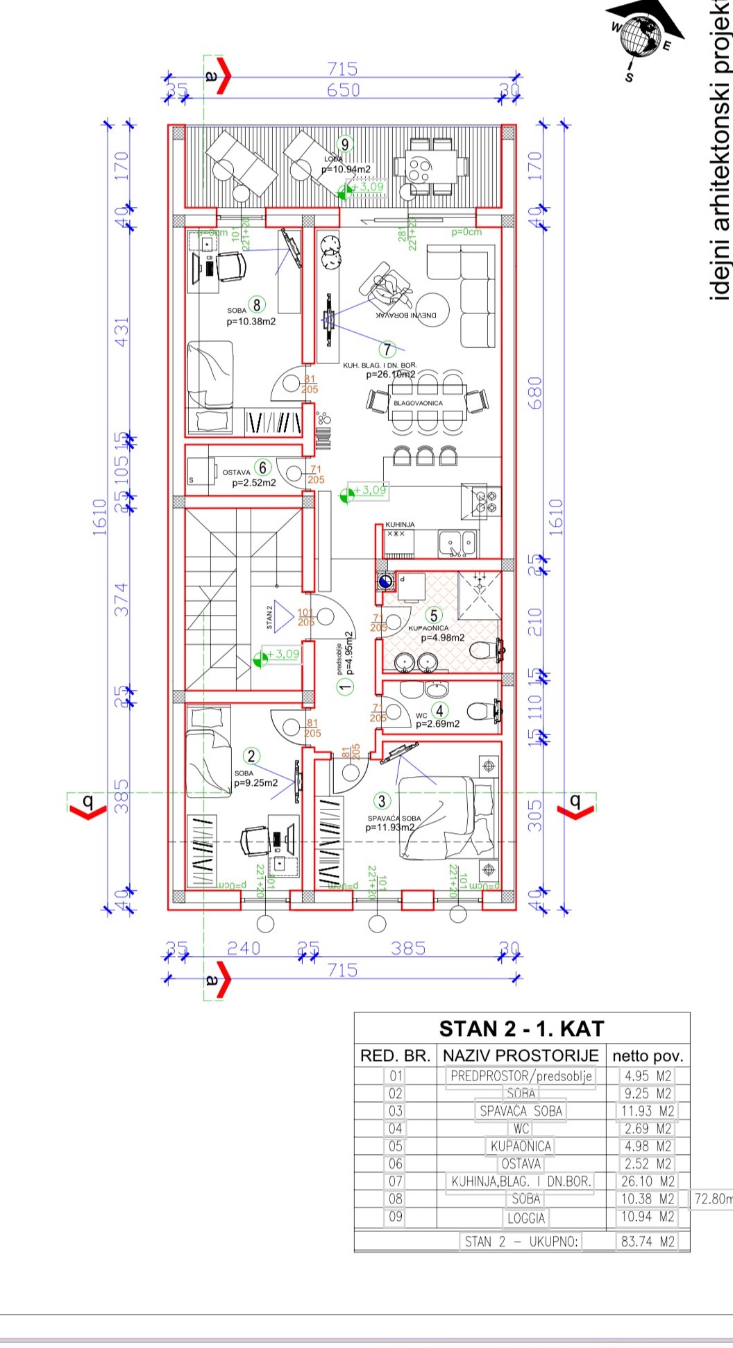
1. kat: četverosoban stan, koji se sastoji  od predsoblja (4,95m2), kuhinje, blagovaonice i dnevnog boravka (26,10m2), ostave (2,52m2), kupaonice (4,98m2), spavaće sobe 1 (10,38m2), sobe 2 (9,00m2),
sobe 3 (10,84m2), WC-a (2,69m2) i lođe (8,45m2).
Ukupne površine 78,00m2. Uz stan je pripadajuće parkirno mjesto.

Cijena:230.000,00eur

2. kat; četverosoban stan, koji se sastoji od predsoblja (4,95m2), kuhinje, blagovaonice i dnevnog boravka (20,60m2), kupaonice (4,98m2), spavaće sobe 1 (11,93m2), sobe 2 (9,25m2),
sobe 3 (9,75m2), WC-a (2,69m2) i terase (21,50m2).
Ukupne površine 80,50m2. Uz stan je pripadajuće parkirno mjesto.

Cijena:230.000,00eur

Orijentacije: sjever/jug.

Stanovi su opremljeni  PVC stolarijom, podovi – keramika po izboru kupca, klizne stijene, protuprovalna vrta, klima (sve sobe)…
Grijanje: podno, plinsko centralno.
Useljivo: do početka 2027.god.
U blizini stana nalazi se škola, vrtić, trgovine, javni prijevoz (tramvaj/bus), Gradski bazeni …

This style property is located in is currently and has been listed on Nekretnine Rupčić. This property is listed at . It has bedrooms, bathrooms, and is . The property was built in year.